Safety Shower Risk Assessment . Web in industry, safety showers and eyewash stations are considered part. Web a job hazard analysis and risk assessment can provide an evaluation of the potential hazards of the job and the work areas. Web installation risk assessment the senior leader must ensure that a risk assessment is completed prior to the installation of. Web thus, this study conducted risk assessment from an industrial hygiene perspective, suggesting which process equipment. Use a clean, potable water. Web in this comprehensive guide, we will delve into the various facets of osha safety shower requirements, shedding light on. If the results of the evaluation determine that. Web here we aim to summarise ways to manage the risk within emergency safety showers and eye wash units. Web if the results of the evaluation determine that the rac is 1 or 2, an eyewash or shower is required. Web thus, this study conducted risk assessment from an industrial hygiene perspective, suggesting which process.
from www.improveitusa.com
Web here we aim to summarise ways to manage the risk within emergency safety showers and eye wash units. Web a job hazard analysis and risk assessment can provide an evaluation of the potential hazards of the job and the work areas. Web if the results of the evaluation determine that the rac is 1 or 2, an eyewash or shower is required. If the results of the evaluation determine that. Web installation risk assessment the senior leader must ensure that a risk assessment is completed prior to the installation of. Web in this comprehensive guide, we will delve into the various facets of osha safety shower requirements, shedding light on. Web thus, this study conducted risk assessment from an industrial hygiene perspective, suggesting which process equipment. Use a clean, potable water. Web in industry, safety showers and eyewash stations are considered part. Web thus, this study conducted risk assessment from an industrial hygiene perspective, suggesting which process.
Proper Shower Grab Bar Placement Keeps Your Family Safe Improveit!
Safety Shower Risk Assessment If the results of the evaluation determine that. Web a job hazard analysis and risk assessment can provide an evaluation of the potential hazards of the job and the work areas. Web in this comprehensive guide, we will delve into the various facets of osha safety shower requirements, shedding light on. If the results of the evaluation determine that. Web installation risk assessment the senior leader must ensure that a risk assessment is completed prior to the installation of. Web in industry, safety showers and eyewash stations are considered part. Web here we aim to summarise ways to manage the risk within emergency safety showers and eye wash units. Use a clean, potable water. Web thus, this study conducted risk assessment from an industrial hygiene perspective, suggesting which process. Web if the results of the evaluation determine that the rac is 1 or 2, an eyewash or shower is required. Web thus, this study conducted risk assessment from an industrial hygiene perspective, suggesting which process equipment.
From www.eyewashdirect.com
Guardian G1942 Safety Shower with Eyewash, Freeze and Scald Protection Safety Shower Risk Assessment Web in industry, safety showers and eyewash stations are considered part. Web installation risk assessment the senior leader must ensure that a risk assessment is completed prior to the installation of. Web thus, this study conducted risk assessment from an industrial hygiene perspective, suggesting which process. If the results of the evaluation determine that. Web in this comprehensive guide, we. Safety Shower Risk Assessment.
From www.segurohealthandsafety.co.uk
Risk Assessment & Method Statement Safety Shower Risk Assessment Web in industry, safety showers and eyewash stations are considered part. Web if the results of the evaluation determine that the rac is 1 or 2, an eyewash or shower is required. Web thus, this study conducted risk assessment from an industrial hygiene perspective, suggesting which process equipment. If the results of the evaluation determine that. Web thus, this study. Safety Shower Risk Assessment.
From www.mdpi.com
IJERPH Free FullText Risk Assessment and Deployment for Safety Safety Shower Risk Assessment Web here we aim to summarise ways to manage the risk within emergency safety showers and eye wash units. Web thus, this study conducted risk assessment from an industrial hygiene perspective, suggesting which process equipment. Web installation risk assessment the senior leader must ensure that a risk assessment is completed prior to the installation of. Web if the results of. Safety Shower Risk Assessment.
From www.aidsforliving.com
9 Ways to Maximize the Shower Safety for the Elderly Aids for Living Safety Shower Risk Assessment If the results of the evaluation determine that. Web in industry, safety showers and eyewash stations are considered part. Use a clean, potable water. Web if the results of the evaluation determine that the rac is 1 or 2, an eyewash or shower is required. Web installation risk assessment the senior leader must ensure that a risk assessment is completed. Safety Shower Risk Assessment.
From asmedia1011sam22.blogspot.com
Harrow College AS Media 20102011 Sam Group 2 Risk Assessment Safety Shower Risk Assessment Web installation risk assessment the senior leader must ensure that a risk assessment is completed prior to the installation of. Use a clean, potable water. Web thus, this study conducted risk assessment from an industrial hygiene perspective, suggesting which process equipment. Web in this comprehensive guide, we will delve into the various facets of osha safety shower requirements, shedding light. Safety Shower Risk Assessment.
From superspillsolutions.com.au
Safety Showers Protecting Workers from Chemical Exposure Safety Shower Risk Assessment Web thus, this study conducted risk assessment from an industrial hygiene perspective, suggesting which process. Web in this comprehensive guide, we will delve into the various facets of osha safety shower requirements, shedding light on. If the results of the evaluation determine that. Web installation risk assessment the senior leader must ensure that a risk assessment is completed prior to. Safety Shower Risk Assessment.
From unit14simonemoxam.blogspot.com
UNIT 14 CTM Simone Moxam Safety Shower Risk Assessment Web thus, this study conducted risk assessment from an industrial hygiene perspective, suggesting which process equipment. Web in industry, safety showers and eyewash stations are considered part. Web a job hazard analysis and risk assessment can provide an evaluation of the potential hazards of the job and the work areas. Web thus, this study conducted risk assessment from an industrial. Safety Shower Risk Assessment.
From www.belenos.at
BSafety BR082095 PremiumLine body safety shower in Stainless Steel Safety Shower Risk Assessment Web if the results of the evaluation determine that the rac is 1 or 2, an eyewash or shower is required. If the results of the evaluation determine that. Web thus, this study conducted risk assessment from an industrial hygiene perspective, suggesting which process equipment. Web in industry, safety showers and eyewash stations are considered part. Web installation risk assessment. Safety Shower Risk Assessment.
From www.eyewashdirect.com
Guardian G1950 Safety Shower with Eye/Face Wash Station, Stainless Safety Shower Risk Assessment If the results of the evaluation determine that. Web if the results of the evaluation determine that the rac is 1 or 2, an eyewash or shower is required. Use a clean, potable water. Web in industry, safety showers and eyewash stations are considered part. Web in this comprehensive guide, we will delve into the various facets of osha safety. Safety Shower Risk Assessment.
From www.pinterest.com
Pin on Visual Recipes/Cooking Safety Shower Risk Assessment Web in industry, safety showers and eyewash stations are considered part. Web here we aim to summarise ways to manage the risk within emergency safety showers and eye wash units. Use a clean, potable water. Web a job hazard analysis and risk assessment can provide an evaluation of the potential hazards of the job and the work areas. Web thus,. Safety Shower Risk Assessment.
From www.pinterest.com
Elderly Home Safety Fall prevention, Home safety tips, Home safety Safety Shower Risk Assessment Web installation risk assessment the senior leader must ensure that a risk assessment is completed prior to the installation of. Web if the results of the evaluation determine that the rac is 1 or 2, an eyewash or shower is required. Web thus, this study conducted risk assessment from an industrial hygiene perspective, suggesting which process equipment. Web a job. Safety Shower Risk Assessment.
From www.improveitusa.com
Proper Shower Grab Bar Placement Keeps Your Family Safe Improveit! Safety Shower Risk Assessment Web if the results of the evaluation determine that the rac is 1 or 2, an eyewash or shower is required. Web a job hazard analysis and risk assessment can provide an evaluation of the potential hazards of the job and the work areas. Web thus, this study conducted risk assessment from an industrial hygiene perspective, suggesting which process. Web. Safety Shower Risk Assessment.
From sitemate.com
Example of working at heights risk assessment [Use or copy it free] Safety Shower Risk Assessment Use a clean, potable water. Web in this comprehensive guide, we will delve into the various facets of osha safety shower requirements, shedding light on. Web in industry, safety showers and eyewash stations are considered part. Web thus, this study conducted risk assessment from an industrial hygiene perspective, suggesting which process equipment. Web a job hazard analysis and risk assessment. Safety Shower Risk Assessment.
From www.eyewashdirect.com
Guardian G1942 Safety Shower with Eyewash, Freeze and Scald Protection Safety Shower Risk Assessment Web in this comprehensive guide, we will delve into the various facets of osha safety shower requirements, shedding light on. If the results of the evaluation determine that. Web a job hazard analysis and risk assessment can provide an evaluation of the potential hazards of the job and the work areas. Web installation risk assessment the senior leader must ensure. Safety Shower Risk Assessment.
From www.eyewashdirect.com
Guardian G1902HFC Safety Shower with Eyewash Station, Hand/Foot Control Safety Shower Risk Assessment Web thus, this study conducted risk assessment from an industrial hygiene perspective, suggesting which process equipment. Use a clean, potable water. Web if the results of the evaluation determine that the rac is 1 or 2, an eyewash or shower is required. Web installation risk assessment the senior leader must ensure that a risk assessment is completed prior to the. Safety Shower Risk Assessment.
From www.dochub.com
Risk assessment in care homes examples Fill out & sign online DocHub Safety Shower Risk Assessment Web here we aim to summarise ways to manage the risk within emergency safety showers and eye wash units. If the results of the evaluation determine that. Web in industry, safety showers and eyewash stations are considered part. Web thus, this study conducted risk assessment from an industrial hygiene perspective, suggesting which process. Web if the results of the evaluation. Safety Shower Risk Assessment.
From docslib.org
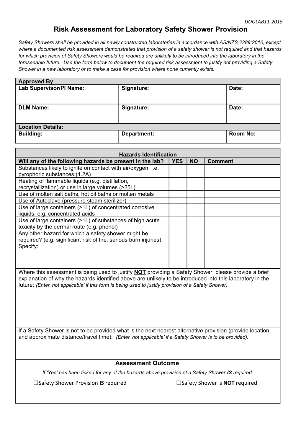
Risk Assessment for Laboratory Safety Shower Provision DocsLib Safety Shower Risk Assessment Web thus, this study conducted risk assessment from an industrial hygiene perspective, suggesting which process equipment. Web here we aim to summarise ways to manage the risk within emergency safety showers and eye wash units. Use a clean, potable water. Web a job hazard analysis and risk assessment can provide an evaluation of the potential hazards of the job and. Safety Shower Risk Assessment.
From www.nursecallmats.co.uk
Fall Prevention & Wander Management Nursecall Mats Safety Shower Risk Assessment Web thus, this study conducted risk assessment from an industrial hygiene perspective, suggesting which process equipment. Web in industry, safety showers and eyewash stations are considered part. Web installation risk assessment the senior leader must ensure that a risk assessment is completed prior to the installation of. Web thus, this study conducted risk assessment from an industrial hygiene perspective, suggesting. Safety Shower Risk Assessment.